您當前所在位置:首頁 > TH環鏈斗式提升機
TH環鏈斗式提升機提升化肥
TH環鏈斗式提升機適用于輸送粉狀、粒狀及小塊狀的無磨琢及磨琢性小的物料。TH型是一種圓環鏈斗式提升機采用混合式或重力卸料,挖取式裝料。牽引件用合金鋼高度圓環鏈。中部機殼分單、雙通道兩種形式為機內重錘箱恒力自動張緊。鏈輪采用可換輪緣組合式結構。使用壽命長,輪緣更換工作簡便。下部采用重力自動張緊裝置,能保持恒定的張緊力,避免打滑或脫鏈,同時料斗遇到偶然因素引起的卡殼現象時有一定的容讓性,能夠保護下部軸等部件。該斗式提升機適用于輸送堆積密度小于1.5t/m³易于掏取的粉狀、粒狀、小塊狀的底磨琢性物料。如煤、水泥、碎石、砂子、化肥、糧食等。TH型斗式提升機用于各種散狀物料的垂直輸送。適用于輸送粉狀、粒狀、小塊狀物料,物料溫度在250℃以下。

TH環鏈斗式提升機備有二種料斗:ZH型(中深斗)一般適用于輸送濕的、易結塊、較難拋出的物料,如濕砂、型砂、化肥、堿肥、堿粉等。SH型(深斗)一般適用于輸送干燥的、松散易于拋出的物料,如水泥、碎石、煤塊等。
本機轉動裝置有兩種形式,分別配有ZJ型減速器和ZQ型減速器。ZJ型軸裝減速器直接套裝在主軸軸頭上,省去了轉動平臺,聯軸器等,使結構緊湊、重量輕、而且內部帶有異型輥逆止器,逆止可靠,該減速器噪聲低,運轉平穩,并隨主軸浮動,可消除安裝應力。本機輸送量可達365m3/h,提升高度為50m。


TH系列環鏈斗式提升機是一種常見的物料垂直輸送設備,適用于以下范圍:
建筑材料行業:TH系列環鏈斗式提升機廣泛應用于建筑材料行業,用于垂直輸送水泥、石灰石、石膏、粉煤灰等顆粒狀或粉狀的建筑材料。
礦山行業:在礦山行業中,TH系列環鏈斗式提升機常用于輸送礦石、煤炭、礦渣等物料。
冶金行業:TH系列環鏈斗式提升機在冶金行業中用于垂直輸送冶金礦石、焦炭、石灰石等物料。
糧食加工行業:在糧食加工行業中,TH系列環鏈斗式提升機常用于垂直輸送糧食、油料、飼料等物料。
化工行業:TH系列環鏈斗式提升機也適用于化工行業,用于垂直輸送化工原料、顆粒狀的化工產品等。

1、輸送量大,相同斗寬的TH型與HL型相比,輸送量增大近一倍;
2、本提升機為混合或重力方式卸料,掏取式裝料,適用輸送堆積密度不大于噸/米3的物料的粉狀、粒狀、小塊狀的低磨琢性物料,物料的溫度不得超過250℃;
3、牽引件為低合金高強度圓環鏈,經適當的熱處理后,具有很高的抗拉強度和耐磨性,使用壽命長;
4、下部采用了重錘杠桿式張緊裝置,即可實現自動張緊。一次安裝后不需調整,可以保持恒定的張緊力,從而保證機器的正常運轉,避免了打滑或脫鏈;
5、采用了組裝式鏈輪。有輪體、輪緣用高強度螺栓聯接而成。在鏈輪磨損到一定程度后,可擰下螺栓,拆換輪緣,更換方便,且節約拆料、降低了維修費。


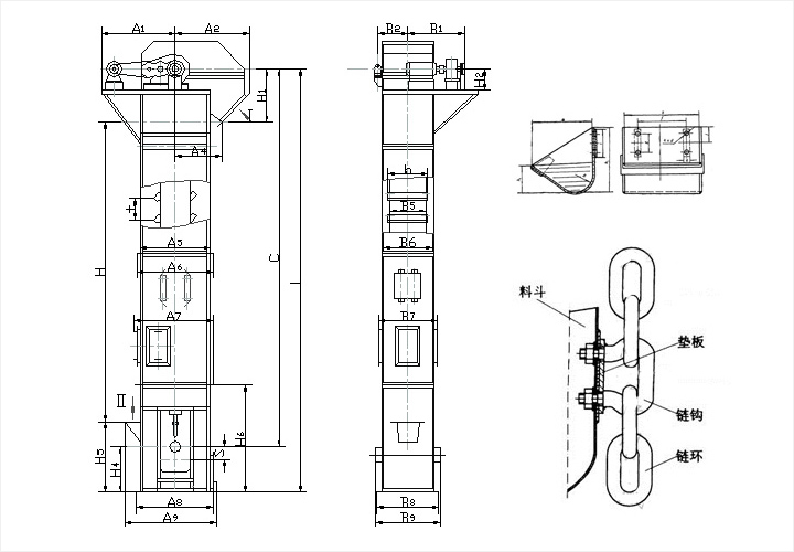
1、機首部件:它由上部機殼,主動軸部件,減速機、連軸器、電機等組裝成一體。
2、中部機殼:根據需要提升的高度、配置不同數量的中部機殼迭加起來既能滿足需要。
3、下部部件:它由底部機殼,從動軸部件及張緊裝置結成一體。機殼側面有門可以打開,對其內部進行檢查如清掃。
4、鏈條及料斗:鏈條為圓鋼焊接環鏈。料斗用螺母定在鏈條的接頭上。不同高度的斗提機現套相應數量的鏈條、接頭、及料斗。

| 型號 | TH315 | TH400 | TH500 | TH630 | TH800 | TH1000 | ||||||
| 料斗型式 | Zh | Sh | Zh | Sh | Zh | Sh | Zh | Sh | Zh | Sh | Zh | Sh |
| 輸送量(m3/h) | 21 | 36 | 36 | 56 | 45 | 70 | 68 | 110 | 87 | 141 | 141 | 220 |
| 斗寬(mm) | 315 | 400 | 500 | 630 | 800 | 1000 | ||||||
| 斗容(L) | 3.75 | 6 | 5.9 | 9.5 | 9.3 | 15 | 14.6 | 23.6 | 23.3 | 37.5 | 37.6 | 58 |
| 斗距(mm) | 500 | 600 | 688 | 688 | 920 | 920 | ||||||
| 鏈條規格 | Φ18×50 | Φ18×50 | Φ22×86 | Φ22×86 | Φ26×92 | Φ26×92 | ||||||
| 鏈條節徑(mm) | 630 | 710 | 800 | 900 | 1000 | 1250 | ||||||
| 斗速(m/s) | 1.4 | 1.4 | 1.5 | 1.5 | 1.6 | 1.6 | ||||||
| 物料量大塊(mm) | 45 | 55 | 65 | 75 | 85 | 100 | ||||||
注意:
1、表中斗容為計算斗容,輸送量按填充系數0.6計算得出。
2、TH型環鏈斗式提升機料斗用途:
Zh—中深斗:輸送濕粘性物料,如糖、濕細沙等。
Sh—深斗:輸送重的粉狀至小塊狀物料,如水泥、砂、煤等。
3、HL型環鏈斗式提升料斗的用途:
Q—淺圓底料斗:輸送潮濕、易結塊、難拋出的物料,如濕沙、濕煤等。
S—深圓底料斗:輸送干燥的、松散的、易拋出的物料,如水泥、煤塊、碎石等。
